当前位置:
衣柜网>
衣柜新闻>
行业热点>
详情
手机版最新留言:
使用手机微信“扫一扫”功能,扫描以下二维码,即可将本文分享到“朋友圈”中。
2024-06-27 编辑:中国衣柜网 来源:网络 浏览数:6351
伊仕利家居新塘全案展厅落地,又一展厅导入全新品牌形象,并把标准化的全案设计系统及VI广告设计落地到店面,整体视觉呈现上更为高阶!
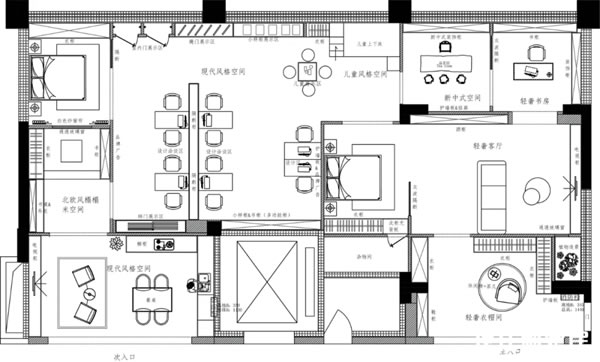
伊仕利家居新塘全案展厅占地面积220平米,整个展厅以“实用定制”为设计理念,进行入户系统、护墙系统、洽谈系统、展示系统、品牌VI系统等升级,外部形象设计高阶大气,内部空间柜·墙·门一体化,给予追求更高品质的客户完美体验。
▲展厅平面布局图
入门
入门外侧门头金色的发光logo,左侧经典蓝色格栅+金色发光logo,整体设计简单又充满高级感,树立品牌高端视觉形象。入门里面空间是同色系整体衣帽间和鞋柜布局,新品色彩搭配清新自然,更潮流时尚。
客厅
灯光与软装,与空间、产品形成互动,营造舒适、温馨、放松的体验氛围,与消费者追求达成共识,进一步提升产品的信服力与转化率。
厨房
在这里,顾客可以完成所有厨房体验,转角吊柜+地柜+岛台设计,材质耐热耐磨耐刮,外观颜色别致简约,造型设计线条流畅,整体空间时尚大气。
书房
轻奢质感,体现出极具态度的设计,大到功能布局,小到细节配置,低调之中透露着品质和品味,展现着实用美学与生活方式。
茶室
前卫时尚的主基调,让新中式风拥有更多可能性,让实用设计融入生活,营造有格调的生活空间,满足自由自在的生活方式。
卧室
收纳是卧室设计重要的部分,在整个空间里增加了充足的收纳空间,让家居收纳化繁为简,整洁有序,通过木板和灯光的组合,材质和颜色的变化,让空间更加丰富。
儿童房
少而质朴的色彩选择,简约实用,打造一些精品系列,为孩子们带来安心感受的空间和产品,同时用设计的力量绽放空间活力。
店面形象是顾客的“第一印象”,伊仕利全案展厅对门店装修、产品空间布局、整体风格、无主灯设计等进行全新形象设计,不局限于某一种风格或格局,而是依托客户的需求,在展厅中呈现引人注目的效果!
新形象创赢新未来,伊仕利全案展厅全面铺展,助力全国经销商更进一步提升品牌竞争力!伊仕利以“实用定制”为核心设计理念,给予广大消费者更好的定制家居体验!
END
(图文来源:伊仕利家居公众号,侵删)
想了解这个项目,请联系我!
我想加盟,请将项目的资料发给我。
请问我所在地区有加盟商了吗?
想了解此项目的加盟流程,请联系我!
请问加盟此项目需投资多少钱?
版权与免责声明:
凡未注明稿件来源的内容均为转稿或由企业用户注册发布,本网转载出于传递更多信息的目的,如转稿涉及版权问题,请作者联系我们处理。我们对页面中展示内容的真实性、准确性和合法性均不承担任何法律责任。
如内容信息对您产生影响,请及时联系我们修改或删除。
15811192007

今天已经有 402 人获取加盟资料
激发新活力,释放新动能,大咖齐聚,闪耀门展-2023中国国际门业展览会(北京门展),中国木门网、中居联高端访谈栏目专访鑫雅迪负离子木门营销总监刘志峰。
激发新活力,释放新动能,大咖齐聚,闪耀门展-2023中国国际门业展览会(北京门展),中国木门网、中居联高端访谈栏目专访洋诚智慧木门总经理王智。
激发新活力,释放新动能,大咖齐聚,闪耀门展-2023中国国际门业展览会(北京门展),中国木门网、中居联高端访谈栏目专访戴克爱家高定刘杰。
激发新活力,释放新动能,大咖齐聚,闪耀门展-2023中国国际门业展览会(北京门展),中国木门网、中居联高端访谈栏目专访品桥木门总经理隗治洪
激发新活力,释放新动能,大咖齐聚,闪耀门展-2023中国国际门业展览会(北京门展),中国木门网、中居联高端访谈栏目专访兄弟木门营销总经理鲍壮。
2024门业及定制家居品牌峰会暨中居联杯·2023年度木门及门墙柜整装十大品牌表彰盛典圆满落幕
5月10日,“蝶变·未来 全新智能家居发布会”柏丽嘉全屋智能定制家居经销商会在成都香迪大酒店盛大开启。
让加盟更诚信 让选择更放心
立即咨询做有权威的品牌