当前位置:
衣柜网>
衣柜新闻>
行业热点>
详情
手机版最新留言:
使用手机微信“扫一扫”功能,扫描以下二维码,即可将本文分享到“朋友圈”中。
2024-06-27 编辑:中国衣柜网 来源:网络 浏览数:6353
沃格全屋定制江西余干店营造多元空间,回归生活本质
品牌介绍
沃格全屋定制创立于2008年,是广东沃格智能家居有限公司旗下的全屋生态定制家居品牌,集产品研发、设计、生产、销售、服务于一体,由著名影视明星“左小青”倾情代言。
产品理念
沃格全屋定制坚持以客户为中心,致力于为消费者提供高品质、个性化、智能化的家居定制服务。
项目说明
项目面积:200㎡
项目名称:江西余干店 -沃格全屋定制展厅
项目地址:上饶市余干县
应用产品:简约风-迪卡系列、睿格系列;轻奢风-羽缇系列、奥兰系列
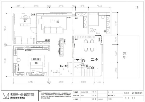
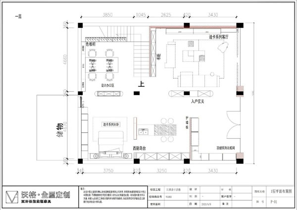
空间布局
1楼平面布置图
2楼平面布置图
简约风-场景展示
迪卡客厅
应用产品:拉丝古橡(高定)/苍蓝银河/玛雅灰/水帘珠/比利卡橡(高定)书柜,外挂趟门
客厅的空间布局
围合出舒适通透的交流场域
将精致家居和理想生活融合
迪卡主卧
应用产品:石晶奢石+珍珠木板
浅杏色的床头背景使用石晶奢石点缀
感应式灯带为夜晚提供柔和的光线
布置的柔软纯棉床品
让人感受到放松、安心
睿格主卧
应用产品:丁香木+卡其卡/铁灰门板+开放式衣帽间 +多功能五金拉篮
丁香木柜体散发出淡淡的清香
与卡其卡/铁灰门板相得益彰
时尚沉稳的格调,流畅的线条凸显出空间的立体
衣帽间八分收纳区和二分展示区的合理规划
空间利用率达到最大化
西厨岛台
应用产品:烟熏胡桃+潘朵拉晶石墙板+卡其卡门板
储藏区、清洗区、烹饪区、调酒区
还原出“烟火人间”的生活情境
无论是想要制作美味佳肴还是调制鸡尾酒
在这里都能得心应手
轻奢风-场景展示
羽缇衣帽间
应用产品:银线白檀/奶油皮纹+搭配皮革门板/圆弧铝合金装饰柱
银线白檀和奶油皮纹与皮革面板的搭配
设计简约而不失庄重
清晰的分类与全面的收纳把更多人性化与仪式感融入日常
奥兰客厅
应用产品 :淡雅橡+简白
色调柔和的大面积简白
纹理美观的淡雅橡作为点缀
在自然灯光与室内灯光的融合下
让人只想懒洋洋窝在沙发里
多元场景-沉浸体验
法式奶油风卧室
应用产品:小法式门板/吸塑门板
柔和的奶油色调浪漫、温润
精致的小法式门板,欧式经典的造型设计
运用最简化的手法,保留了法式风格的精华
设计办公区
应用产品:云杉木圆弧电视柜+设计区色板
板材的铺设,系列产品的展示
提供多种材质、颜色的选择方案
客户可以直观地选材确样
轻松找到符合自己需求的产品
沃格展厅 品质推介
家,是承载生活的容器,是居住者内心情感的空间表达。
沃格江西余干展厅,沃格设计师将居住者的生活方式融入到空间设计之中,充分满足中高端客户对家居空间个性化需求。如果你正在寻找家居设计灵感或者想要定制购买高质量的家具产品,可以前往江西余干展厅参观!
(图文来源:广东沃格家居公众号,侵删)
想了解这个项目,请联系我!
我想加盟,请将项目的资料发给我。
请问我所在地区有加盟商了吗?
想了解此项目的加盟流程,请联系我!
请问加盟此项目需投资多少钱?
版权与免责声明:
凡未注明稿件来源的内容均为转稿或由企业用户注册发布,本网转载出于传递更多信息的目的,如转稿涉及版权问题,请作者联系我们处理。我们对页面中展示内容的真实性、准确性和合法性均不承担任何法律责任。
如内容信息对您产生影响,请及时联系我们修改或删除。
15811192007

今天已经有 402 人获取加盟资料
激发新活力,释放新动能,大咖齐聚,闪耀门展-2023中国国际门业展览会(北京门展),中国木门网、中居联高端访谈栏目专访鑫雅迪负离子木门营销总监刘志峰。
激发新活力,释放新动能,大咖齐聚,闪耀门展-2023中国国际门业展览会(北京门展),中国木门网、中居联高端访谈栏目专访洋诚智慧木门总经理王智。
激发新活力,释放新动能,大咖齐聚,闪耀门展-2023中国国际门业展览会(北京门展),中国木门网、中居联高端访谈栏目专访戴克爱家高定刘杰。
激发新活力,释放新动能,大咖齐聚,闪耀门展-2023中国国际门业展览会(北京门展),中国木门网、中居联高端访谈栏目专访品桥木门总经理隗治洪
激发新活力,释放新动能,大咖齐聚,闪耀门展-2023中国国际门业展览会(北京门展),中国木门网、中居联高端访谈栏目专访兄弟木门营销总经理鲍壮。
2024门业及定制家居品牌峰会暨中居联杯·2023年度木门及门墙柜整装十大品牌表彰盛典圆满落幕
5月10日,“蝶变·未来 全新智能家居发布会”柏丽嘉全屋智能定制家居经销商会在成都香迪大酒店盛大开启。
让加盟更诚信 让选择更放心
立即咨询做有权威的品牌